豊能郡能勢町倉垣の倉庫 1-2階
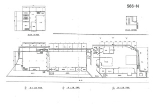
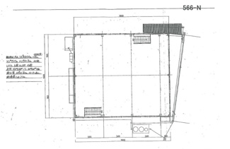
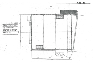
貸工場(3棟有り) ☆東棟 (2階建 延べ約171.24坪) ☆中棟(平屋建 約163.35坪) ☆西棟(平屋建 約192.93坪) ◇駐車スペース約20台有り ◇市街化調整区域
- 賃料
- 77万円
- 坪単価
- 0.15万円
- 面積/坪数
- 1743.91㎡/527.53坪
- 所在階
- 1-2階
- 管理費・共益費
- -
- 保証金
- 6ヶ月
- 礼金
- 0ヶ月
物件概要 【倉庫】 物件番号:90617012 情報更新日:2026年01月20日 次回更新予定日:2026年02月03日
| 所在地 | 大阪府豊能郡能勢町倉垣 | ||
|---|---|---|---|
| 交通 | |||
| 賃料 | 77万円 | 管理費・共益費 | - |
| 敷金/保証金/礼金 | 0ヶ月/ 6ヶ月/ 0ヶ月 | 償却/敷引 | 2ヶ月/ - |
| 面積/坪数 | 1743.91㎡/527.53坪 | 坪単価 | 0.15万円 |
| 築年数/方位 | 築53年/- | 契約期間 | 2年 |
| 種別/構造 | 倉庫/鉄骨造 | 区画/所在階/階建 | 3棟有/ 1-2階/ 2階建 |
| 現状 | 賃貸中 | 引渡時期 | 2025年07月上旬予定 |
| 駐車場/月額料金 | 有(20台)/0円 | 保険加入/料金 | 有/- |
| 雑費/権利金 | -/- | 用途地域 | - |
| 取引形態 | 仲介 | ||
| 保証人代行義務 | 必加入 | 保証会社 | - |
| 保証会社詳細 | 貸主指定家賃保証会社 | ||
| 物件番号 | 90617012 | ||
| 設備条件 |
|
||
| 備考 |
坪単価約1,459円、(東棟)昭和47年9月築・2階建(中棟)築年月日不詳・平家建(西棟)昭和61年6月築・平家建 、上水道、浄化槽、キューピクル(借主使用中)、現状渡し。 ※隣接駐車場15~20台相談可(別途契約要) |
||
| 条件(その他) | 貸主指定家賃保証料:77万円 | ||
初期費用シミュレーションこの物件を借りた場合の初期費用の一例です。
- 賃料
- 管理費・共益費
- 保証金:
- 礼金
- 前家賃(日割り) ※1
-
- 前家賃(日割り)
- 仲介手数料 ※2
- その他費用
- 合計
※1. 1か月を30日として計算しています。
※2. 仲介手数料は税抜き価格です。また、仮の価格となりますので、実際の仲介手数料に関してはお気軽にお問い合わせ下さい。
担当者のコメント 中村明弘

- ◇貸工場(3棟有り) ☆東棟 (2階建 延べ約171.24坪) ☆中棟(平屋建 約163.35坪) ☆西棟(平屋建 約192.93坪) ◇駐車スペース約20台有り ◇市街化調整区域











