藤井寺市小山7丁目の倉庫 1-4階
4階建貸工場・倉庫 延べ約341.3坪 ◇EV1基 ◇駐車スペース3台分有り ◇1階シャッター間口高さ 約4m 1階天高6.1mトラック室内まで乗り入れ可能 ◇準工業地域 ◇西名阪自動車道「藤井寺」ICまで車約4分 ※3t規制標識有り
- 賃料
- 82.5万円
- 坪単価
- 0.24万円
- 面積/坪数
- 1128.47㎡/341.36坪
- 所在階
- 1-4階
- 管理費・共益費
- -
- 敷金
- 8ヶ月
- 礼金
- 0ヶ月
物件概要 【倉庫】 物件番号:72705913 情報更新日:2026年04月14日 次回更新予定日:2026年04月28日
| 所在地 | 大阪府藤井寺市小山7丁目 | ||
|---|---|---|---|
| 交通 | |||
| 賃料 | 82.5万円 | 管理費・共益費 | - |
| 敷金/保証金/礼金 | 8ヶ月/ -/ 0ヶ月 | 償却/敷引 | 4ヶ月/ - |
| 面積/坪数 | 1128.47㎡/341.36坪 | 坪単価 | 0.24万円 |
| 築年数/方位 | 築36年/- | 契約期間 | 2年 |
| 種別/構造 | 倉庫/鉄骨造 | 区画/所在階/階建 | 4階建/ 1-4階/ 4階建 |
| 現状 | 空家 | 引渡時期 | 相談 |
| 駐車場/月額料金 | 有(3台)/0円 | 保険加入/料金 | 有/- |
| 雑費/権利金 | -/- | 用途地域 | 準工業 |
| 取引形態 | 一般媒介 | ||
| 保証人代行義務 | 必加入 | 保証会社 | - |
| 保証会社詳細 | 貸主指定家賃保証会社 | ||
| 物件番号 | 72705913 | ||
| 設備条件 |
|
||
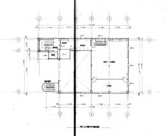
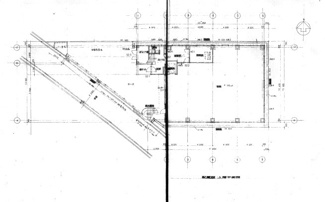
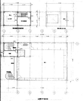
| 備考 | 坪単価約2416円、水光熱費別途負担、1階約74.39坪・中2階約39.75坪・2階~4階各約75.73坪、基準階階高 1階:6,100mm・2~4階:2,400mm 、床加重 2階:500kg/㎡・3~4階:300kg/㎡、EV1基、床仕様:防塵塗装、個別空調、自用看板設置可 看板賃料:月額20,000円(税別)※設置・撤去費用は借主負担、機械警備:基本は借主負担ですがご相談ください、現状渡し。 | ||
| 条件(その他) | 貸主指定家賃保証料:82万5,000円 | ||
初期費用シミュレーションこの物件を借りた場合の初期費用の一例です。
- 賃料
- 管理費・共益費
- 敷金:
- 礼金
- 前家賃(日割り) ※1
-
- 前家賃(日割り)
- 仲介手数料 ※2
- その他費用
- 合計
※1. 1か月を30日として計算しています。
※2. 仲介手数料は税抜き価格です。また、仮の価格となりますので、実際の仲介手数料に関してはお気軽にお問い合わせ下さい。
担当者のコメント 坂本大輔

- ■4階建て鉄骨造1棟貸しビル、延べ約341.3坪 ■準工業地域 ■3トン規制標識有り ■昇降機あり











